Стойки шумозащитных экранов
ГОСТ 23118-2019
Производим и поставляем металлические стойки шумозащитных экранов с покрытием – горячее оцинкование по ГОСТ 9.307-89 (ИСО 1461-89).
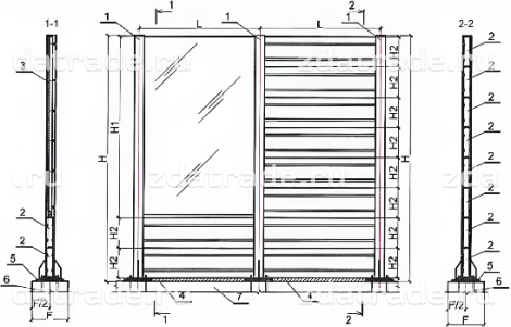
Стойки шумозащитных экранов используются в качестве каркаса при монтаже и фиксации звукоотражающих экранов вдоль железнодорожных путей. Изделие представляет собой двутавровую стальную балку с приваренным снизу фланцем для крепления к фундаменту. Стойка шумозащитного экрана, предлагаемая нашим заводом, подходит для монтажа всех типов защитных ограждений, а для повышения надёжности и долговечности покрывается специальным антикоррозийным составом.
Предлагаемые стойки шумозащитных экранов соответствуют отраслевым стандартам и требованиям, что гарантирует долговечность, простоту монтажа, длительный период использования и надёжность работы стоек.
Производим и поставляем металлические стойки шумозащитных экранов с покрытием – горячее оцинкование по ГОСТ 9.307-89 (ИСО 1461-89).
Стойки шумозащитных экранов используются в качестве каркаса при монтаже и фиксации звукоотражающих экранов вдоль железнодорожных путей. Изделие представляет собой двутавровую стальную балку с приваренным снизу фланцем для крепления к фундаменту. Стойка шумозащитного экрана, предлагаемая нашим заводом, подходит для монтажа всех типов защитных ограждений, а для повышения надёжности и долговечности покрывается специальным антикоррозийным составом.
Предлагаемые стойки шумозащитных экранов соответствуют отраслевым стандартам и требованиям, что гарантирует долговечность, простоту монтажа, длительный период использования и надёжность работы стоек.
Другие товары из этого раздела: Винтовые сваи для контактной сети; Междушпальные и межпутные лотки; Фундаменты и опоры гибких поперечин; Фундаменты и анкеры опоры контактной сети; Узлы крепления ригеля, лестницы к колонне