Винтовые сваи для контактной сети
РД 9154
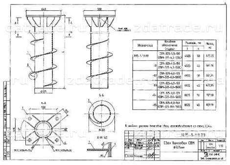
Винтовые сваи (РЧ 3015) представляют собой металлическую конструкцию, состоящую из ствола круглого сечения, лопасти и опорной плиты квадратного сечения с рёбрами. Фундаменты из винтовых свай применяются в районах многолетней мерзлоты и районах, поверженных сезонному промерзанию грунтов. Предназначены для установки на них металлических опор контактной сети и стоек жестких поперечин, а также анкеров для крепления оттяжек анкерных опор на участках постоянного и переменного тока.
Главными преимуществами использования винтовых свай для обустройства опор контактной сети являются: максимально быстрые сроки и простота монтажа, возможность использования на мерзлых и сложных грунтах, устойчивы для эффекта пучения грунтов, а также позволяет значительно экономить время и деньги в процессе проведения работ.
Винтовые сваи для контактной сети соответствуют отраслевым требованиям и стандартам, что гарантирует долгий период использования, надёжность, простоту монтажа и долговечность.
Винтовые сваи (РЧ 3015) представляют собой металлическую конструкцию, состоящую из ствола круглого сечения, лопасти и опорной плиты квадратного сечения с рёбрами. Фундаменты из винтовых свай применяются в районах многолетней мерзлоты и районах, поверженных сезонному промерзанию грунтов. Предназначены для установки на них металлических опор контактной сети и стоек жестких поперечин, а также анкеров для крепления оттяжек анкерных опор на участках постоянного и переменного тока.
Главными преимуществами использования винтовых свай для обустройства опор контактной сети являются: максимально быстрые сроки и простота монтажа, возможность использования на мерзлых и сложных грунтах, устойчивы для эффекта пучения грунтов, а также позволяет значительно экономить время и деньги в процессе проведения работ.
Винтовые сваи для контактной сети соответствуют отраслевым требованиям и стандартам, что гарантирует долгий период использования, надёжность, простоту монтажа и долговечность.
| Марка сваи | Длина, мм | Диаметр ствола, мм / Диаметр лопасти, мм | Вес, т |
| СВМ-325-4,5-120 | 4525 | 325/480 | 0,44 |
| СВМ-325-4,5-150 | 4525 | 325/480 | 0,5 |
| СВМ-325-6,0-120 | 6025 | 325/480 | 0,55 |
| СВМ-325-6,0-150 | 6025 | 325/480 | 0,67 |
| СВМ-325-8,0-120 | 8025 | 325/480 | 0,7 |
| СВМ-325-8,0-150 | 8025 | 325/480 | 0,83 |
| СВМ-351-4,5-120 | 4525 | 351/480 | 0,46 |
| СВМ-351-4,5-150 | 4525 | 351/480 | 0,46 |
| СВМ-351-4,5-180 | 4530 | 351/480 | 0,55 |
| СВМ-351-6,0-120 | 6025 | 351/480 | 0,59 |
| СВМ-351-6,0-150 | 6025 | 351/480 | 0,59 |
| СВМ-351-6,0-180 | 6030 | 351/480 | 0,7 |
| СВМ-351-8,0-120 | 8025 | 351/480 | 0,76 |
| СВМ-351-8,0-150 | 8025 | 351/480 | 0,76 |
| СВМ-351-8,0-180 | 8030 | 351/480 | 0,9 |
|
СВМ-426-4,5-150 |
4525 | 426/600 | 0,55 |
| СВМ-426-4,5-180 | 4530 | 426/600 | 0,66 |
| СВМ-426-6,0-150 | 6025 | 426/600 | 0,71 |
| СВМ-426-6,0-180 | 6030 | 426/600 | 0,84 |
| СВМ-426-8,0-150 | 8025 | 426/600 | 1,07 |
| СВМ-426-8,0-180 | 8030 | 426/600 | 1,28 |
| СВМ-530-4,5-150 | 4525 | 530/850 | 0,71 |
| СВМ-530-4,5-180 | 4530 | 530/850 | 0,72 |
| СВМ-530-6,0-150 | 6025 | 530/850 | 0,9 |
| СВМ-530-6,0-180 | 6030 | 530/850 | 0,92 |
| СВТ-325-4,5-120 | 4525 | 325/480 | 0,44 |
| СВТ-325-4,5-150 | 4525 | 325/480 | 0,5 |
| СВТ-325-6,0-120 | 6025 | 325/480 | 0,55 |
| СВТ-325-6,0-150 | 6025 | 325/480 | 0,67 |
| СВТ-325-8,0-120 | 8025 | 325/480 | 0,7 |
| СВТ-325-8,0-150 | 8025 | 325/480 | 0,83 |
| СВТ-351-4,5-120 | 4525 | 351/480 | 0,46 |
| СВТ-351-4,5-150 | 4525 | 351/480 | 0,46 |
| СВТ-351-4,5-180 | 4530 | 351/480 | 0,55 |
| СВТ-351-6,0-120 | 6025 | 351/480 | 0,59 |
| СВТ-351-6,0-150 | 6025 | 351/480 | 0,59 |
| СВТ-351-6,0-180 | 6030 | 351/480 | 0,7 |
| СВТ-351-8,0-120 | 8025 | 351/480 | 0,76 |
| СВТ-351-8,0-150 | 8025 | 351/480 | 0,76 |
| СВТ-351-8,0-180 | 8030 | 351/480 | 0,9 |
| СВТ-426-4,5-150 | 4525 | 426/600 | 0,55 |
| СВТ-426-4,5-180 | 4530 | 426/600 | 0,66 |
| СВТ-426-6,0-150 | 6025 | 426/600 | 0,71 |
| СВТ-426-6,0-180 | 6030 | 426/600 | 0,84 |
| СВТ-426-8,0-150 | 8025 | 426/600 | 1,07 |
| СВТ-426-8,0-180 | 8030 | 426/600 | 1,28 |
| СВТ-530-4,5-150 | 4525 | 530/850 | 0,71 |
| СВТ-530-4,5-180 | 4530 | 530/850 | 0,72 |
| СВТ-530-6,0-150 | 6025 | 530/850 | 0,9 |
| СВТ-530-6,0-180 | 6030 | 530/850 | 0,92 |
Другие товары из этого раздела: Блок шпальный Б24.20.7.5; Контргрузы бетонные; Рамные опоры рмп, рмт, рмг; Междушпальные и межпутные лотки; Стойки шумозащитных экранов